
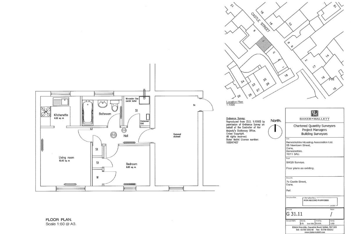
7C Castle Street, Duns
Description
This one bedroom, second floor flat, is suitable for a single person. The flat is part of a block and is accessed by a door entry system
The property is located in Duns town centre, providing convenient access to local services and amenities.
The accommodation comprises a single bedroom, living room, compact kitchen and bathroom with a bath only.
Duns has various amenities such as grocery stores, a post office, pharmacy and health centre. The town is also located on the main Galashiels to Berwick-upon-Tweed bus route, which links in with rail services in either town.
Property Type
Flat
Floor
2nd floor
Lift
No
Access
Stepped
Single Bedrooms
1
Double Bedrooms
0
Council Tax
A
Garden
None
Parking
None
Heating
Full
Heating Fuel
Gas
Central Heating
Combi Boiler
EPC
D
Rent
£76.19 per week

