44 Gunsgreen Crescent, Eyemouth

Description

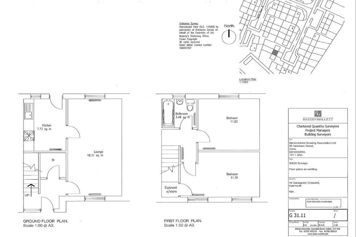
This property is accessed by steps down then one step into the front door.

The property has front and rear gardens and a shared walkway to back garden.

The bathroom has a shower over bath provision.

This property is in close walking distance of the high school, and walking distance of the primary school, nurseries and high street.

Eyemouth has independent shops and a coop, larger supermarkets are located in Berwick upon tweed

There are bus links to Berwick upon tweed, Edinburgh & across the Scottish Borders

The closest Rail Links are Reston & Berwick upon Tweed

Property Type
Mid Terraced House
Access
Stepped
Single Bedrooms
0
Double Bedrooms
2
Council Tax
B
Garden
Front and Rear
Parking
On Street
Heating
Full
Heating Fuel
Gas
Central Heating
Combi Boiler
EPC
C
Rent
£114.27 per week