
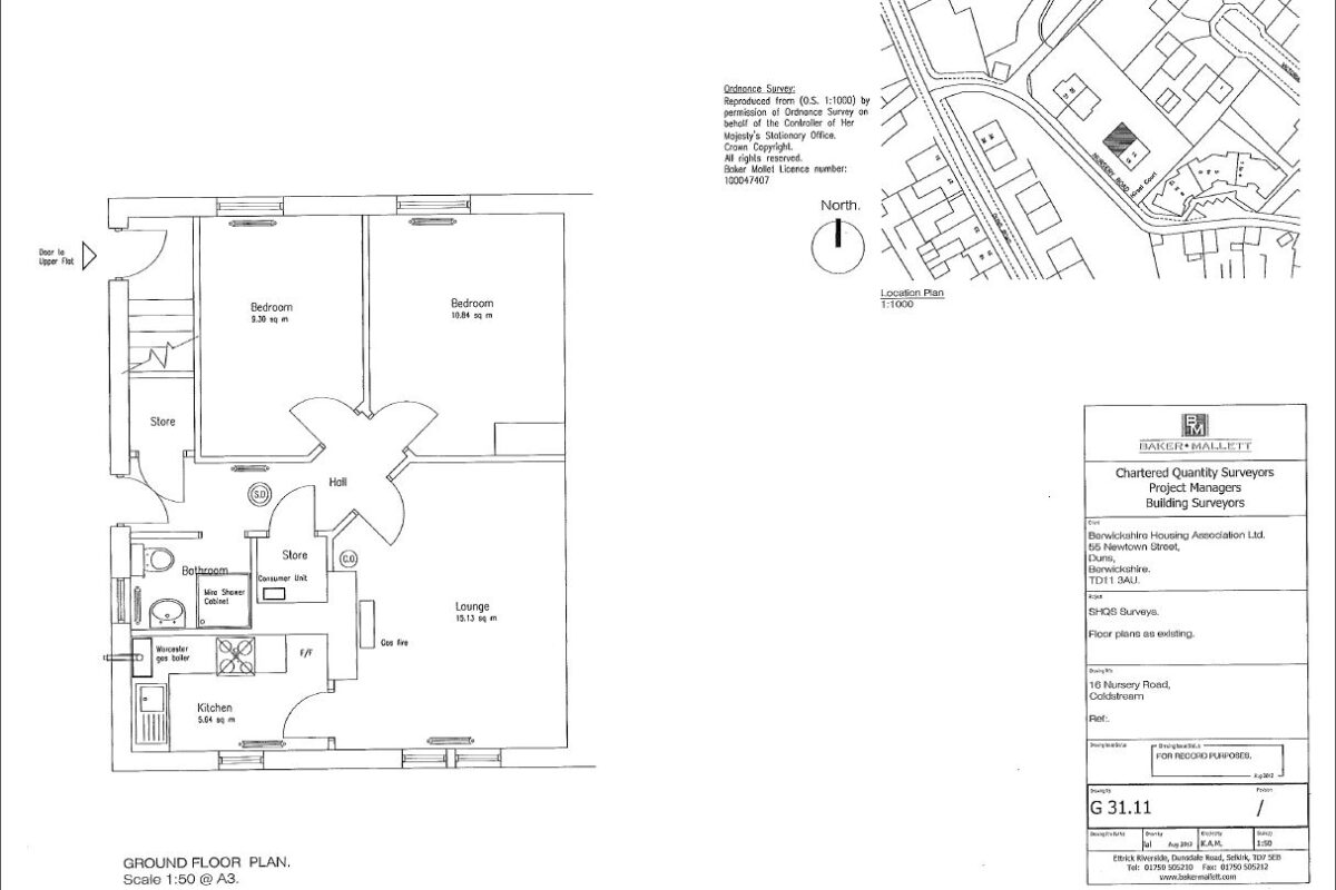
16 Nursery Road, Coldstream
Description
This 2 bedroom, ground floor, 4-in-a-block flat is accessed via approx 2 steps and benefits from gas central heating, medium garden to front and rear, step in shower and has on street parking.
Please note the rent is currently £101.57 per week but will increase to £106.45 from 6 April 2026.
The property is within walking distance of all local amenities which include a Health Centre, Primary School and shops.
The High Street has a Co-op, butchers, barbers, hairdressers, pharmacy, restaurants, pubs, cafes, pharmacy and other small independent shops.
Kelso is approx 9 miles and Duns approx 12 miles which have a larger Supermarket and Swimming Pools. Berwick upon Tweed is approx 12 miles and has all the larger supermarkets and railway station.
Property Type
Four in a block lower floor
Access
Stepped
Single Bedrooms
0
Double Bedrooms
2
Council Tax
B
Garden
Front and Rear
Parking
On Street
Heating
Full
Heating Fuel
Gas
Central Heating
Combi Boiler
EPC
C
Rent
£101.57 per week

