
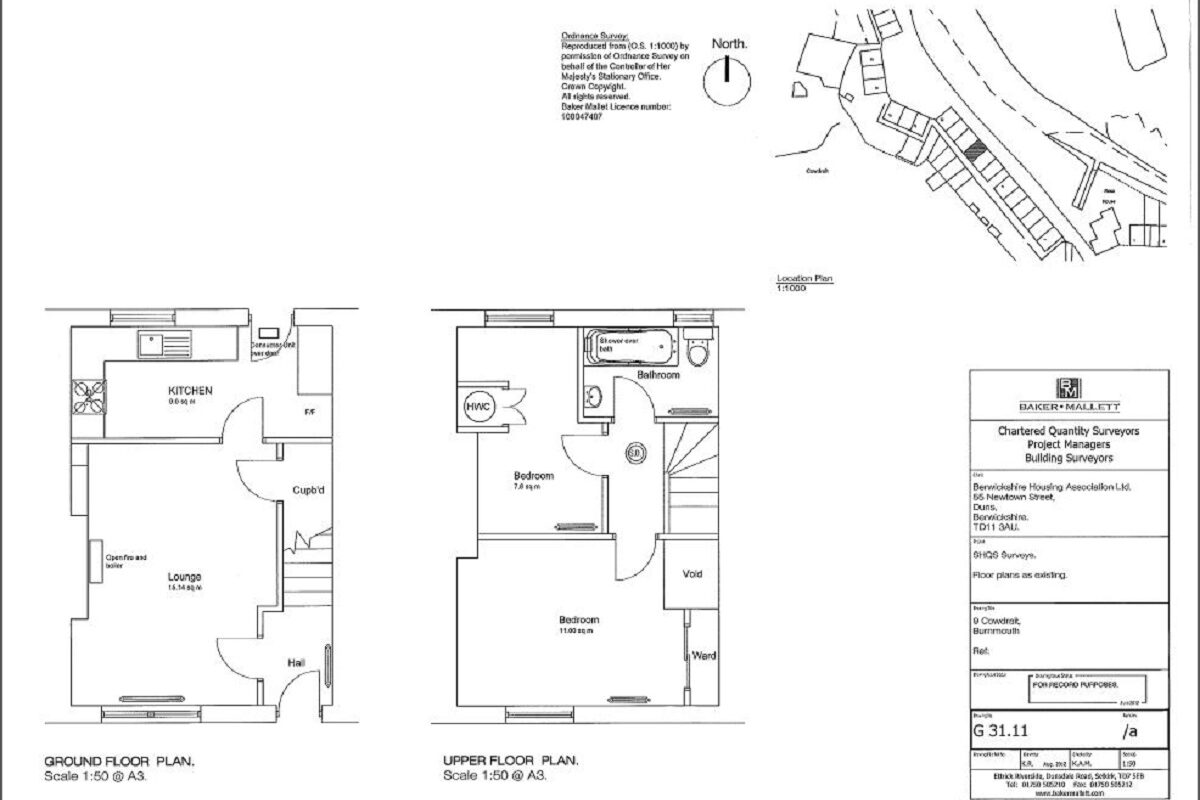
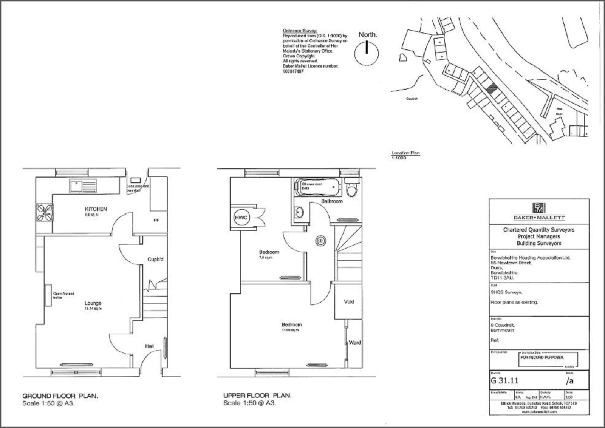
9 Cowdrait, Burnmouth
Description
This property is a 2 bedroomed family home with lounge, kitchen, Bath with over bath shower and 2 good sized bedroom. The garden is on an incline. This property has electric heating.
Suited in the quaint fishing village of Burnmouth, situated down the brae on the sea front but due to access a car is an advantage almost essential due to it's steep incline. Burnmouth village has close access to the A1 North and South. There is no public transport servicing Cowdrait but there is a bus service in Upper Burnmouth. Medical and Dental centres along with both Primary and High Schools are in Eyemouth.
Property Type
Mid Terraced House
Access
Level
Single Bedrooms
0
Double Bedrooms
2
Council Tax
B
Garden
Rear
Parking
Off Street
Heating
Full
Heating Fuel
Solid Fuel
Central Heating
Other
EPC
E
Rent
£114.27 per week



