
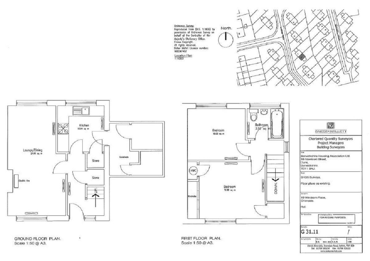
19 Windram Place, Chirnside
Description
This 2 bedroom 4 person semi-detached house has electric heating, the family bathroom has a bath with over-bath shower, ample storage, garden areas to front and rear and on-street parking nearby. Chirnside has a small co-op food store, newsagents, a primary school, play park and is on a main bus route between Berwick and Galashiels. Chirnside is approximately 10 miles from Berwick and approximately 50 miles from Edinburgh. The are nearby train stations at Reston and Berwick-upon-Tweed. The nearest main supermarkets would be in either Berwick or Galashiels.
Property Type
Semi Detached House
Access
Stepped
Single Bedrooms
0
Double Bedrooms
2
Council Tax
C
Garden
Front and Rear
Parking
On Street
Heating
Full
Heating Fuel
Electric
Central Heating
Other
EPC
C
Rent
£114.27 per week


